- Accueil
- Programme
- Hauts de seine
- Puteaux
- Programme Neuf - Magnifique appartement à PUTEAUX
Référence : 163
Calculette
Partager
Programme Neuf - Magnifique appartement à PUTEAUX
Description de l'offre
Située au cœur de l'Ouest parisien, à quelques minutes seulement de La Défense, Puteaux offre un cadre de vie à la fois agréable et pratique. Cette charmante ville vous permet de rejoindre en quelques minutes à pied le centre-ville et les rives de la Seine, où l'espace, l'élégance et la sérénité se rencontrent harmonieusement. Au cœur de cette localité se trouve une résidence de prestige, caractérisée par une architecture inspirée de l'époque victorienne. Cette résidence prestigieuse propose une gamme d'appartements aux prestations de grand standing, créant ainsi un cadre de vie unique et exclusif. Si ce bien vous intéresse n'hésitez pas à nous contacter.
Descriptif du bien
- Code postal : 92800
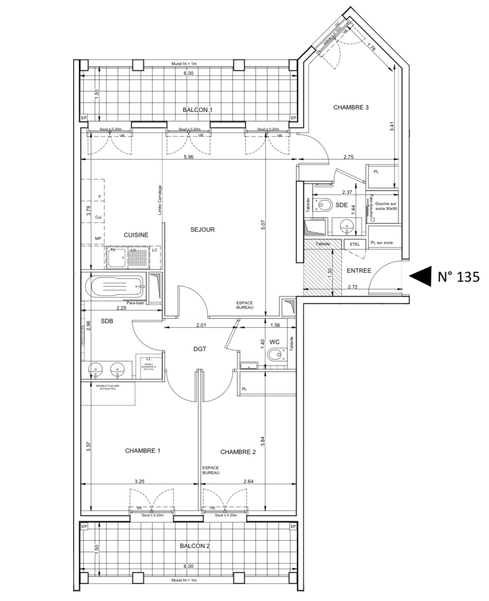
- Surface habitable (m²) : 76,94 m²
- Surface loi Carrez (m²) : 77,10 m²
- Nombre de chambre(s) : 3
- Nombre de pièces : 4
- Nb de salle de bains : 1
- Nb de salle d'eau : 1
- Balcon : OUI
- Terrasse : NON
- Exposition : NORD-OUEST
- Prix de vente honoraires TTC inclus : 778 000 €
La ville de Puteaux (92800)
Nous Contacter
Afficher le téléphone 06 30 20 01 31Les informations recueillies sur ce formulaire sont enregistrées dans un fichier informatisé par La Boite Immo agissant comme Sous-traitant du traitement pour la gestion de la clientèle/prospects de l'Agence / du Réseau qui reste Responsable du Traitement de vos Données personnelles.
La base légale du traitement repose sur l'intérêt légitime de l'Agence / du Réseau.
Elles sont conservées jusqu'à demande de suppression et sont destinées à l'Agence / au Réseau.
Conformément à la loi « informatique et libertés », vous disposez des droits d’accès, de rectification, d’effacement, d’opposition, de limitation et de portabilité de vos données. Vous pouvez retirer votre consentement à tout moment en contactant directement l’Agence / Le Réseau.
Consultez le site https://cnil.fr/fr pour plus d’informations sur vos droits.
Si vous estimez, après avoir contacté l'Agence / le Réseau, que vos droits « Informatique et Libertés » ne sont pas respectés, vous pouvez adresser une réclamation à la CNIL.
Nous vous informons de l’existence de la liste d'opposition au démarchage téléphonique « Bloctel », sur laquelle vous pouvez vous inscrire ici : https://www.bloctel.gouv.fr
Dans le cadre de la protection des Données personnelles, nous vous invitons à ne pas inscrire de Données sensibles dans le champ de saisie libre.
Ce site est protégé par reCAPTCHA, les Politiques de Confidentialité et les Conditions d'Utilisation de Google s'appliquent.

