- Accueil
- Programme
- Hauts de seine
- Suresnes
- Programme Neuf - Magnifique T3 à SURESNES
Référence : 199
Calculette
Partager
Programme Neuf - Magnifique T3 à SURESNES
Description de l'offre
Découvrez un superbe ensemble résidentiel situé à Quai Gallieni, à seulement quelques pas des rives de la Seine. Ce projet immobilier est entouré d'un espace vert arboré et comprend diverses commodités, notamment une crèche, un commerce, et un parking en sous-sol. La résidence vous propose une sélection de magnifiques appartements, avec de spacieux espaces extérieurs tels que des balcons, des terrasses en plein ciel, ou des jardins privatifs. Ces logements offrent de belles vues panoramiques sur le bois de Boulogne, La Défense, ou le Mont Valérien. Au sein de ce cadre verdoyant, où des toits végétalisés, des jardins traversants, et une sente piétonne seront intégrés, vous serez à moins de 10 minutes des commerces du centre-ville, des établissements scolaires, des équipements culturels, et des infrastructures sportives. L'arrêt de tramway "Belvédère," du Tram T2, situé à seulement 600 mètres, vous permettra de rejoindre rapidement La Défense, avec ses connexions au RER A, à la ligne M1, et aux Transiliens L et U. De plus, à l'horizon 2030, la desserte sera complétée par la gare Rueil-Suresnes Mont-Valérien. Cette résidence s'engage à obtenir la certification NF Habitat HQE et Biodivercity®, garantissant ainsi des standards de qualité élevés en matière de durabilité et de biodiversité. Si ce bien vous intéresse n'hésitez pas à nous contacter.
Descriptif du bien
- Code postal : 92150
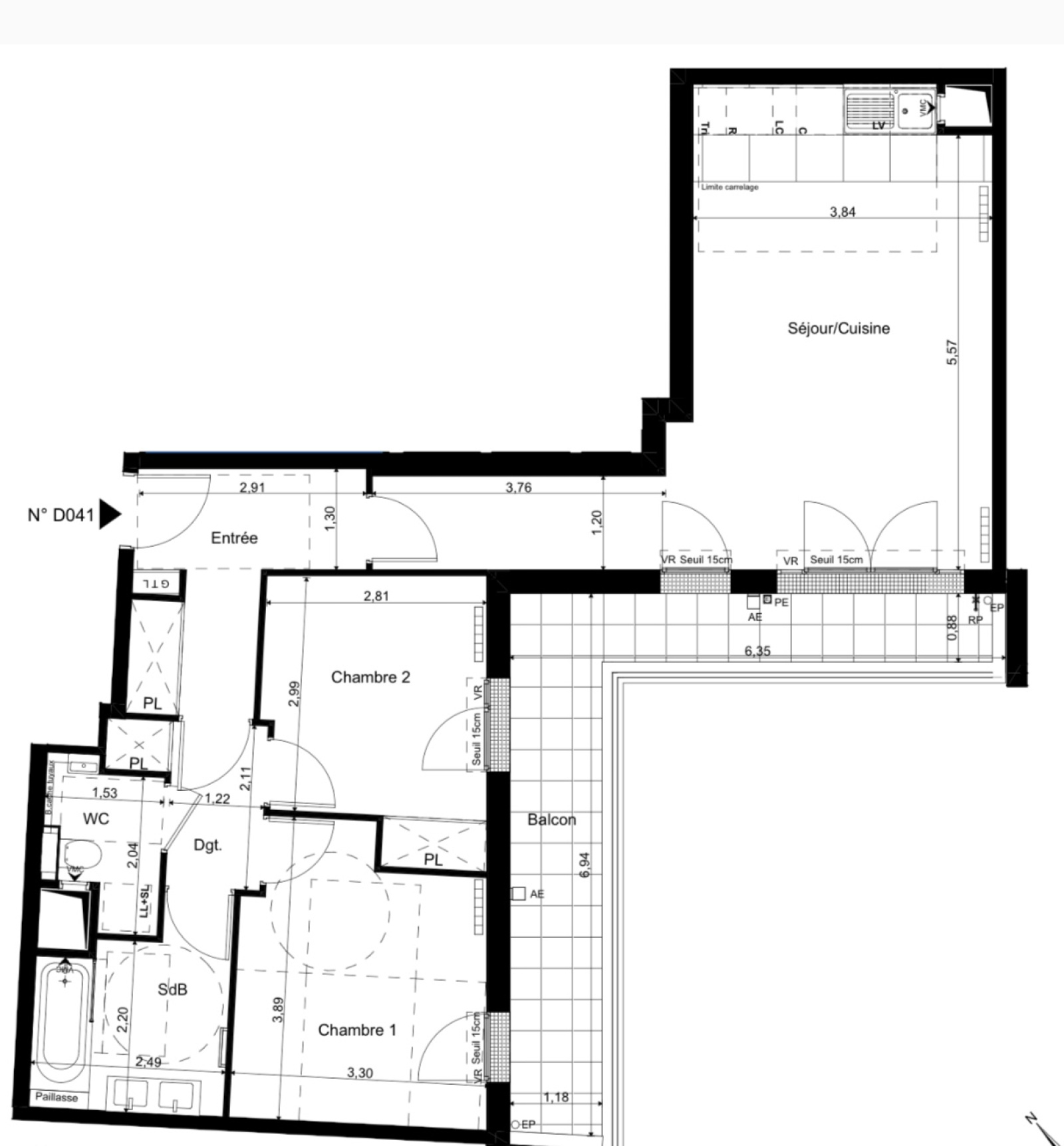
- Surface habitable (m²) : 67,74 m²
- Surface loi Carrez (m²) : 67,77 m²
- Nombre de chambre(s) : 2
- Nombre de pièces : 3
- Etage : 4
- Nb de salle de bains : 1
- Balcon : OUI
- Exposition : SUD
- Prix de vente honoraires TTC inclus : 585 000 €
La ville de Suresnes (92150)
Nous Contacter
Afficher le téléphone 06 30 20 01 31Les informations recueillies sur ce formulaire sont enregistrées dans un fichier informatisé par La Boite Immo agissant comme Sous-traitant du traitement pour la gestion de la clientèle/prospects de l'Agence / du Réseau qui reste Responsable du Traitement de vos Données personnelles.
La base légale du traitement repose sur l'intérêt légitime de l'Agence / du Réseau.
Elles sont conservées jusqu'à demande de suppression et sont destinées à l'Agence / au Réseau.
Conformément à la loi « informatique et libertés », vous disposez des droits d’accès, de rectification, d’effacement, d’opposition, de limitation et de portabilité de vos données. Vous pouvez retirer votre consentement à tout moment en contactant directement l’Agence / Le Réseau.
Consultez le site https://cnil.fr/fr pour plus d’informations sur vos droits.
Si vous estimez, après avoir contacté l'Agence / le Réseau, que vos droits « Informatique et Libertés » ne sont pas respectés, vous pouvez adresser une réclamation à la CNIL.
Nous vous informons de l’existence de la liste d'opposition au démarchage téléphonique « Bloctel », sur laquelle vous pouvez vous inscrire ici : https://www.bloctel.gouv.fr
Dans le cadre de la protection des Données personnelles, nous vous invitons à ne pas inscrire de Données sensibles dans le champ de saisie libre.
Ce site est protégé par reCAPTCHA, les Politiques de Confidentialité et les Conditions d'Utilisation de Google s'appliquent.

